Аренда помещения свободного назначения, 450 м² , Краснобогатырская улица 89с1
Площадь: 450 м²
Цена аренды:
751 500 руб./мес
Цена:
1 670 руб./м²/мес

Краснобогатырская улица, дом
89с1,
Москва,
Россия
м. Преображенская площадь (7 мин.)
Об объекте
- Этаж расположения помещения
- 1 этаж
- Административный округ
- Восточный административный округ
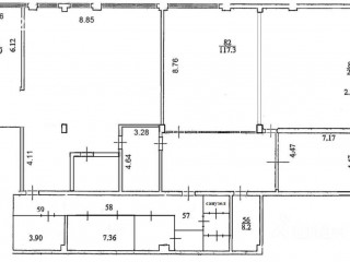
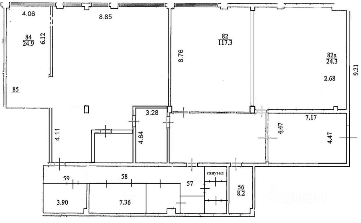
Описание объекта
==ЛОТ 224286 == ОТ СОБСТВЕННИКА, БЕЗ КОМИССИИ. Предлагается в аренду современное производственное помещение общей площадью 450 квадратных метров, расположенное на первом этаже пятиэтажного здания.Первый этаж здания обеспечивает удобный доступ к арендуемому помещению. Въездные ворота оснащены автоматическим управлением и имеют высоту 2,9 метра. Электрическая мощность помещения составляет 100 кВт.Здание оборудовано системой центрального отопления, а также горячим и холодным водоснабжением. В блоке имеется собственный санузел, включающий душевую кабину.Нагрузка на перекрытие составляет 400 кг/м?, высота потолков достигает 3 метров, а пол выполнен из керамической плитки. Помещение характеризуется большими окнами, обеспечивающими хорошее естественное освещение.Вентиляция осуществляется посредством приточно-вытяжной системы.
Краснобогатырская улица, дом 89с1, Москва, Россия
Цена аренды:
751 500 руб./мес
Общая площадь:450 м²










