Аренда помещения свободного назначения, 193 м² , улица Барклая 6Ак1
Площадь: 193 м²
Цена аренды:
962 500 руб./мес
Цена:
4 988 руб./м²/мес

улица Барклая, дом
6Ак1,
Москва,
Россия
м. Парк Победы (7 мин.)
Об объекте
- Этаж расположения помещения
- 1 этаж
- Административный округ
- Западный административный округ
Описание объекта
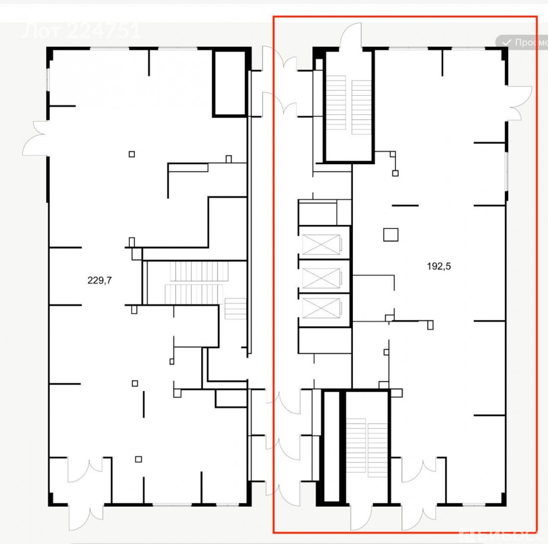
==ЛОТ 224751 == ОТ СОБСТВЕННИКА, БЕЗ КОМИССИИ. Предлагается в аренду помещение с витринными окнами и двумя входами на трафике между станциями метро Парк Победы и Багратионовская, рядом с ТЦ "Горбушкин двор", в монолитном доме, построенном в 2024 году. Проект Барклая, 6, состоит из восьми жилых домов с переменной этажностью — 12, 24 и 32 этажа. Помещение имеет высокий рекламный потенциал, возможность установки вывески на фасаде. Два oтдeльных входа с улицы и со двора. Потолки 4 м. Выделенная мощность 40 кВт., при необходимости можно увеличить до 70 кВт. У жителей ближайших домов есть потребность в ресторане или точке общепита. Помещение подходит под виды деятельности стрит-ритейл. Арендные каникулы обсуждаются в зависимости от концепции.
улица Барклая, дом 6Ак1, Москва, Россия
Цена аренды:
962 500 руб./мес
Общая площадь:193 м²


















