Продажа офиса, 447 м² , Проектируемый проезд № 4062 6с1
Площадь: 447 м²
Цена продажи:
122 932 098 руб.
Цена:
275 016 руб./м²

Проектируемый проезд № 4062, дом
6с1,
Москва,
Россия
м. Технопарк
Об объекте
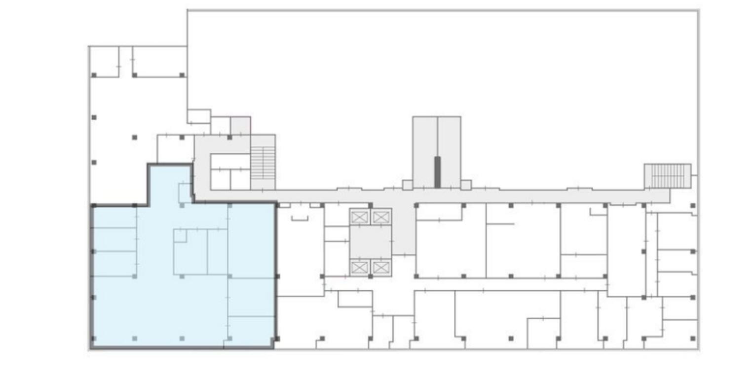
- Этаж расположения помещения
- 3 этаж
- Административный округ
- Южный административный округ
Описание объекта
==ЛОТ 224868 == ОТ СОБСТВЕННИКА, БЕЗ КОМИССИИ. Предлагается к приобретению офисное помещение площадью 447,4 м?, расположенное на третьем этаже здания. Помещение оборудовано дизайнерским ремонтом и имеет смешанную планировку, включающую переговорную комнату, кабинет и зону ресепшн. Остекление выполнено в виде панорамных окон, а также установлена центральная система вентиляции и кондиционирования воздуха.
Проектируемый проезд № 4062, дом 6с1, Москва, Россия
Цена:
122 932 098 руб.
275 016 руб./м²
Общая площадь:447 м²









