Продажа офиса, 251 м² , 6-й Новоподмосковный переулок 3
Площадь: 251 м²
Цена продажи:
68 000 000 руб.
Цена:
270 917 руб./м²

6-й Новоподмосковный переулок, дом
3,
Москва,
Россия
м. Войковская (3 мин.)
- Контактные данные
- +7 (933) 90X-XX-XX
Об объекте
- Административный округ
- Северный административный округ
Описание объекта
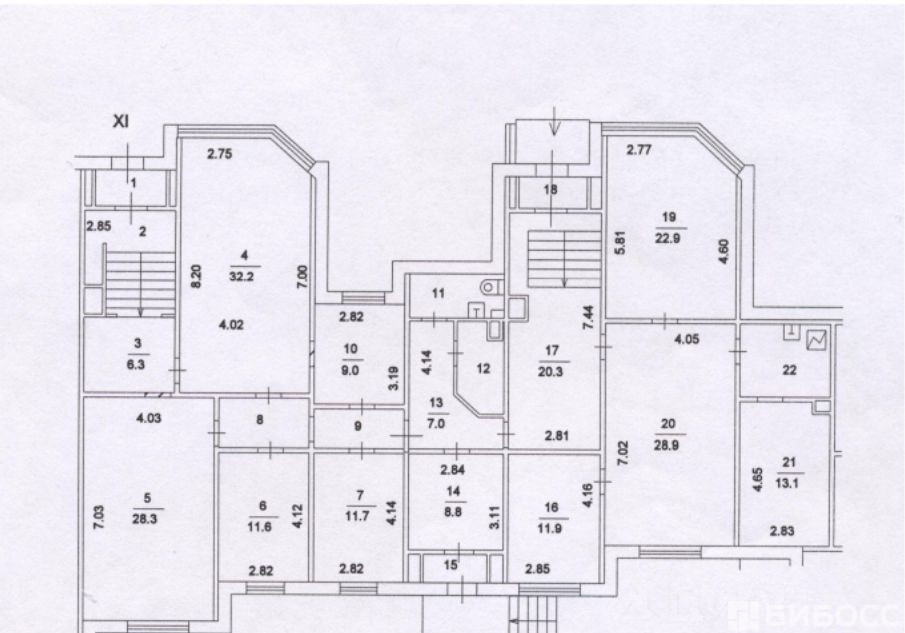
Продается отличный офис 250,5 м2 у метро Войковская!
Идеально подходит для учебного центра, образовательной организации или другого бизнеса, требующего просторных помещений. Есть надежные арендаторы!
Характеристики:
- Площадь: 250,5 м2
- Этаж: 1-й, отдельный вход
- Высота потолков: 2,64 м
- Класс здания: B
- Ремонт: косметический
- Вентиляция: естественная
- Кондиционирование: местное
- Отопление: центральное
- Сигнализация: установлена
- Санузлы: 3
- Транспортная доступность: 12 минут пешком до метро Войковская, рядом остановки общественного транспорта.
Преимущества:
- Просторное помещение, легко адаптируемое под различные нужды.
- Отличный вариант для учебных заведений благодаря удобному расположению и планировке.
- Возможность приобрести готовый арендный бизнес.
- Развитая инфраструктура района.
Звоните прямо сейчас, чтобы узнать подробности и договориться о просмотре![#8139158#]
6-й Новоподмосковный переулок, дом 3, Москва, Россия
Цена:
68 000 000 руб.
270 917 руб./м²
Общая площадь:251 м²
























