Аренда склада, 162 м² , улица Швецова
Площадь: 162 м²
Цена аренды:
127 818 руб./мес
Цена:
789 руб./м²/мес

улица Швецова, дом
,
Санкт-Петербург,
Россия
м. Нарвская
- Контактные данные
- +7 (906) 25X-XX-XX
Аренда
- В стоимость аренды входит
- коммунальные платежи
Об объекте
- Высота потолков, м
- 4,4
- Район
- Кировский
- Система отопления
- местная
- Выделенная энергетическая мощность
- 100 кВТ
Производственные/складские помещения
- Парковка для грузовых авто
-
открытая
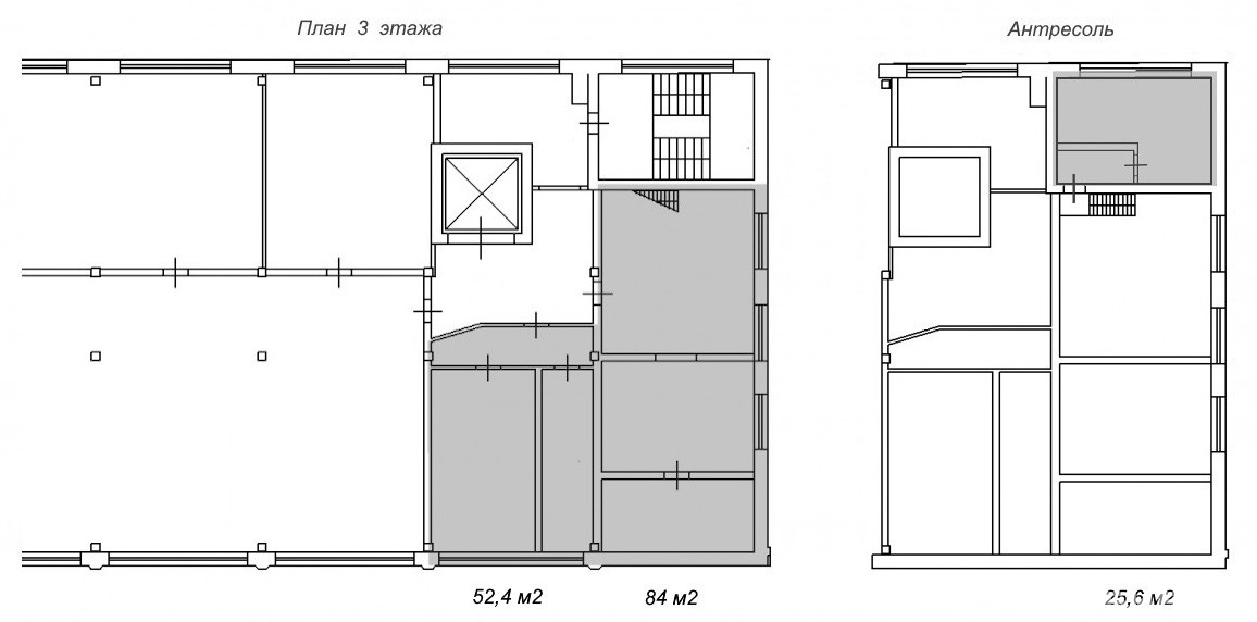
Планы помещений
Описание объекта
Кировский р-н, ул. Швецова, м. Нарвская, м. Балтийская.
Аренда отапливаемого помещения под мастерскую, склад.
Общая площадь: 162 м2 (84+52,4+25,6 м2).
Этаж: 3-й (с небольшой антресолью).
Грузовой лифт: г/п 2т (2,0х1,9х2,5 м).
Высота потолков: 4,4 м.
Пол: ровный, бетонный (линолеум).
Выделенная электрическая мощность: по запросу.
Пожарная сигнализация.
Высокоскоростной интернет, телефония.
Круглосуточная охрана территории. Видеонаблюдение.
Доступ – 24/7.
Подъезд для легкового и грузового транспорта.
Удобная транспортная доступность.
К услугам арендаторов кафе-столовая.
Арендная ставка: 599 руб./м2, вкл. НДС.
Консультант: Вадим.
п100
Код объекта: 19220
Написать представителю
Андрей Салимов
Ваша информация в безопасности.
Она будет отправлена только контактному лицу данного объявления.
улица Швецова, дом , Санкт-Петербург, Россия
Цена аренды:
127 818 руб./мес
Общая площадь:162 м²




















