Аренда склада, 378 м² , Промышленная улица
Площадь: 378 м²
Цена аренды:
283 875 руб./мес
Цена:
751 руб./м²/мес

Промышленная улица, дом
,
Санкт-Петербург,
Россия
- Контактные данные
- +7 (906) 25X-XX-XX
Аренда
- В стоимость аренды входит
- коммунальные платежи
Об объекте
- Высота потолков, м
- 3,5
- Район
- Кировский
- Система отопления
- местная
- Выделенная энергетическая мощность
- 100 кВТ
Производственные/складские помещения
- Парковка для грузовых авто
-
открытая
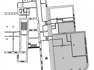
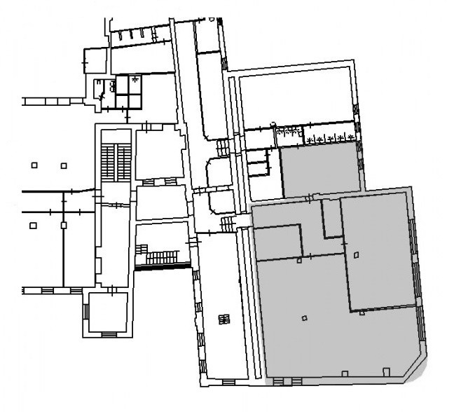
Планы помещений
Описание объекта
Кировский р-н, ул. Промышленная, м. Нарвская.
Аренда отапливаемого помещения под мастерскую, производство, склад.
Площадь: 378,5 м2.
Этаж: 2-й.
Грузовой лифт: 2т (2,0х2,2х2,5).
Высота потолков: 3,5 м.
Напольное покрытие: ламинат.
Выделенная электрическая мощность: по запросу.
Пожарная сигнализация.
Есть возможность аренды офисного помещения.
Высокоскоростной интернет, телефония.
Круглосуточная охрана территории. Пропускной режим.
Доступ – 24 часа.
Подъезд для грузового и легкого транспорта.
Парковка.
Удобная транспортная доступность.
Шаговая доступность от метро.
Арендная ставка: 750 руб./м2, вкл. НДС.
Консультант: Вадим.
П-100.
Код: 19010.
Написать представителю
Андрей Салимов
Ваша информация в безопасности.
Она будет отправлена только контактному лицу данного объявления.
Промышленная улица, дом , Санкт-Петербург, Россия
Цена аренды:
283 875 руб./мес
Общая площадь:378 м²





















