Аренда склада, 169 м² , Звенигородская улица
Площадь: 169 м²
Цена аренды:
185 731 руб./мес
Цена:
1 099 руб./м²/мес

Звенигородская улица, дом
,
Санкт-Петербург,
Россия
м. Достоевская
- Контактные данные
- +7 (906) 25X-XX-XX
Аренда
- В стоимость аренды входит
- коммунальные платежи
Об объекте
- Высота потолков, м
- 4,8
- Район
- Центральный
- Система отопления
- местная
- Выделенная энергетическая мощность
- 100 кВТ
Производственные/складские помещения
- Парковка для грузовых авто
-
открытая
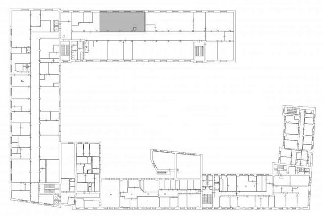
Планы помещений
Описание объекта
Адмиралтейский р-н, ул. Звенигородская, м. Звенигородская.
Аренда отапливаемого помещения под мастерскую, склад.
Площадь: 169,1 м2.
Этаж: 2-й.
Грузовой лифт: г/п 500 кг.
Высота потолков: 4,8 м.
Пол: ровный, бетонный.
Выделенная электрическая мощность: по запросу.
Санузел на этаже.
Пожарная сигнализация.
Высокоскоростной интернет, телефония.
Круглосуточная охрана территории.
Доступ – 24/7.
Подъезд для грузового и легкового транспорта.
К услугам арендаторов: охраняемая парковка, кафе, клининг.
Удобная транспортная доступность.
Шаговая доступность от метро.
Арендная ставка: 1099 руб./м2, вкл. НДС.
Консультант: Вадим.
п100
Код объекта: 19008
Написать представителю
Андрей Салимов
Ваша информация в безопасности.
Она будет отправлена только контактному лицу данного объявления.
Звенигородская улица, дом , Санкт-Петербург, Россия
Цена аренды:
185 731 руб./мес
Общая площадь:169 м²











