Аренда офиса, 477 м² , Заозёрная улица
Площадь: 477 м²
Цена аренды:
457 920 руб./мес
Цена:
960 руб./м²/мес

Заозёрная улица, дом
,
Санкт-Петербург,
Россия
м. Фрунзенская
- Контактные данные
- +7 (906) 25X-XX-XX
Аренда
- В стоимость аренды входит
- коммунальные платежи
Об объекте
- Район
- Московский
- Этаж расположения помещения
- 2 этаж
- Высота потолков
- 3 м
- Ремонт помещения
- чистовая отделка
- Телекоммуникации
- wi-fi, интернет, телефонная линия
- Выделенная энергетическая мощность
- 30 кВТ
- Имеется парковка
-
открытая
- Безопасность
- круглосуточный пункт охраны
- Система пожаротушения
- огнетушители
- Подведено водоснабжение и канализация
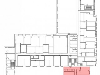
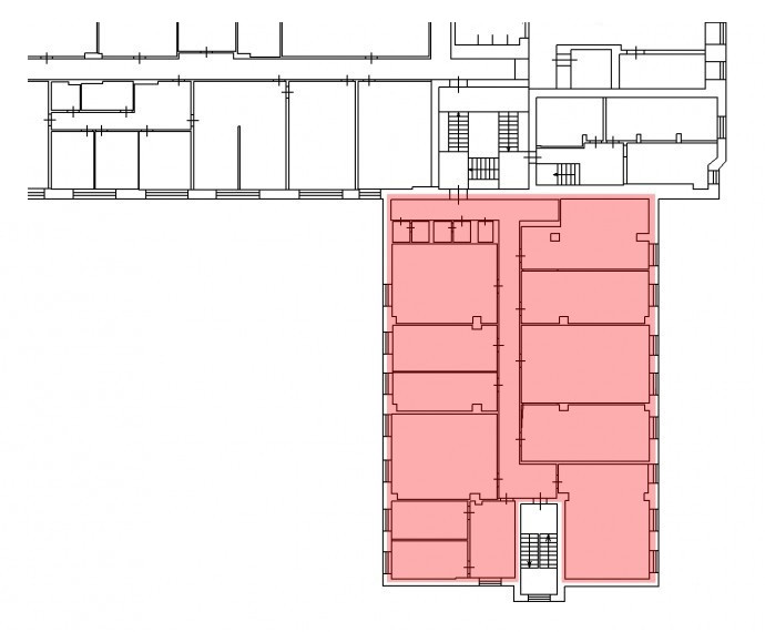
Планы помещений
Описание объекта
Московский р-н, ул. Заозерная, м. Фрунзенская.
Аренда офисного помещения.
Площадь: 477,3 м2.
Кабинетно-коридорная планировка.
Этаж: 2-й.
Высота потолков: 3 м.
Напольное покрытие: ламинат.
Два отдельных входа.
Во всех помещениях выполнен качественный ремонт.
Выделена электрическая мощность.
Санузел, ХВС.
Пожарная сигнализация.
Высокоскоростной интернет, телефония.
Круглосуточная охрана. Пропускной режим. Видеонаблюдение.
Имеется система контроля и управления доступом.
Удобный подъезд и транспортная доступность.
Охраняемая парковка для сотрудников и клиентов.
Шаговая доступность от метро (7 мин.).
К услугам арендаторов кафе-столовая.
Арендная ставка: 960 руб./м2, вкл. НДС.
Консультант: Вадим.
П-100.
Код: 18715.
Написать представителю
Андрей Салимов
Ваша информация в безопасности.
Она будет отправлена только контактному лицу данного объявления.
Заозёрная улица, дом , Санкт-Петербург, Россия
Цена аренды:
457 920 руб./мес
Общая площадь:477 м²


















