Аренда склада, 255 м² , Боровая улица
Площадь: 255 м²
Цена аренды:
203 745 руб./мес
Цена:
799 руб./м²/мес

Боровая улица, дом
,
Санкт-Петербург,
Россия
м. Звенигородская
- Контактные данные
- +7 (906) 25X-XX-XX
Аренда
- В стоимость аренды входит
- коммунальные платежи
Об объекте
- Высота потолков, м
- 3,45
- Район
- Фрунзенский
- Система отопления
- местная
- Выделенная энергетическая мощность
- 10 кВТ
Производственные/складские помещения
- Парковка для грузовых авто
-
открытая
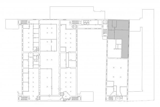
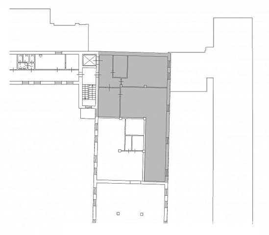
Планы помещений
Описание объекта
Фрунзенский р-н, ул. Боровая, м. Обводный канал.
Аренда отапливаемого помещения под студию, мастерскую, склад.
Площадь: 255,5 м2.
Этаж: 2-й.
Грузовой лифт: г/п 1т (2,2х2,5х2,3 м).
Высота потолков: 3,45 м.
Напольное покрытие: керамогранитная плитка.
Разгрузочная зона с воротами (2,1х1,4 м).
Выделенная электрическая мощность: 10 кВт.
Встроенные офисно-бытовые помещения.
Санузел, ХВС на этаже.
Высокоскоростной интернет, телефония.
Круглосуточная охрана территории.
Подъезд для легкового и малогабаритного грузового транспорта.
Удобная транспортная доступность.
Шаговая доступность от метро.
Арендная ставка: 799 руб./м2, вкл. НДС.
Консультант: Вадим.
п100
Код объекта: 19575
Написать представителю
Андрей Салимов
Ваша информация в безопасности.
Она будет отправлена только контактному лицу данного объявления.
Боровая улица, дом , Санкт-Петербург, Россия
Цена аренды:
203 745 руб./мес
Общая площадь:255 м²




















