Аренда помещения свободного назначения, 598 м² , Дегтярная улица
Площадь: 598 м²
Цена аренды:
565 111 руб./мес
Цена:
946 руб./м²/мес

Дегтярная улица, дом
,
Санкт-Петербург,
Россия
- Контактные данные
- +7 (906) 25X-XX-XX
Аренда
- В стоимость аренды входит
- коммунальные платежи
Об объекте
- Район
- Центральный
- Этаж расположения помещения
- 1 этаж
- Имеется отдельный вход в помещение
- Высота потолков
- 4,15 м
- Ремонт помещения
- чистовая отделка
- Телекоммуникации
- телефонная линия
- Выделенная энергетическая мощность
- 30 кВТ
- Имеется парковка
-
открытая
- Безопасность
- видеонаблюдение
- Система пожаротушения
- огнетушители
- Подведено водоснабжение и канализация
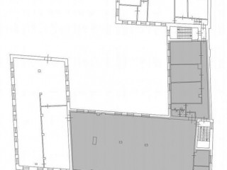
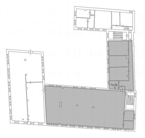
Планы помещений
Описание объекта
Центральный р-н, ул. Дегтярная, м. Площадь Восстания.
Аренда отапливаемого универсального помещения под офис, торговлю, мастерскую, склад.
Общая площадь: 598,1 м2.
Этаж: 2-й.
Высота потолков: 4,15 м.
Пол: ровный, бетонный (линолеум).
Помещение с ремонтом.
Выделенная электрическая мощность: по запросу.
ХВС, водоотведение, с/у.
Высокоскоростной интернет, телефония.
Круглосуточная охрана, контроль доступа, видеонаблюдение.
Доступ – 24/7.
Подъезд для легкового и малогабаритного грузового транспорта.
Удобная транспортная доступность.
Шаговая доступность от метро.
К услугам арендаторов: клининг, охраняемая парковка.
Арендная ставка: 899 руб./м2, вкл. НДС.
Консультант: Вадим.
п100
Код объекта: 19492
Написать представителю
Андрей Салимов
Ваша информация в безопасности.
Она будет отправлена только контактному лицу данного объявления.
Дегтярная улица, дом , Санкт-Петербург, Россия
Цена аренды:
565 111 руб./мес
Общая площадь:598 м²














