Аренда офиса, 85 м² , улица Швецова
Площадь: 85 м²
Цена аренды:
88 400 руб./мес
Цена:
1 040 руб./м²/мес

улица Швецова, дом
,
Санкт-Петербург,
Россия
- Контактные данные
- +7 (906) 25X-XX-XX
Аренда
- В стоимость аренды входит
- коммунальные платежи
Об объекте
- Район
- Кировский
- Этаж расположения помещения
- 4 этаж
- Высота потолков
- 2,2 м
- Ремонт помещения
- чистовая отделка
- Телекоммуникации
- телефонная линия
- Выделенная энергетическая мощность
- 30 кВТ
- Имеется парковка
-
открытая
- Безопасность
- круглосуточный пункт охраны
- Система пожаротушения
- огнетушители
- Подведено водоснабжение и канализация
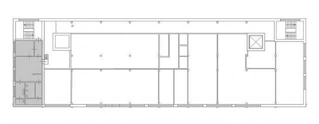
Планы помещений
Описание объекта
Кировский р-н, ул. Швецова, м. Нарвская, м. Балтийская.
Аренда отапливаемого помещения под офис, лабораторию, мастерскую.
Площадь: 85,5 м2.
Этажи: 4-й.
Кабинетная планировка.
Высота потолков: 2,2 м.
На стенах кафельная плитка.
Пол ровный, бетонный (напольное покрытие линолеум).
Выделена электрическая мощность.
ХВС, канализация, с/у.
Пожарная сигнализация.
Высокоскоростной интернет, телефония.
Круглосуточная охрана территории. Видеонаблюдение.
Доступ – 24/7.
Парковка.
Удобная транспортная доступность.
К услугам арендаторов кафе-столовая.
Арендная ставка: 1040 руб./м2, вкл. НДС.
Консультант: Вадим.
п100
Код объекта: 19459
Написать представителю
Андрей Салимов
Ваша информация в безопасности.
Она будет отправлена только контактному лицу данного объявления.
улица Швецова, дом , Санкт-Петербург, Россия
Цена аренды:
88 400 руб./мес
Общая площадь:85 м²













