Аренда склада, 672 м² , улица Швецова
Площадь: 672 м²
Цена аренды:
564 480 руб./мес
Цена:
840 руб./м²/мес

улица Швецова, дом
,
Санкт-Петербург,
Россия
- Контактные данные
- +7 (906) 25X-XX-XX
Аренда
- В стоимость аренды входит
- коммунальные платежи
Об объекте
- Высота потолков, м
- 4,4
- Район
- Кировский
- Система отопления
- местная
- Выделенная энергетическая мощность
- 100 кВТ
Производственные/складские помещения
- Парковка для грузовых авто
-
открытая
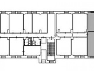
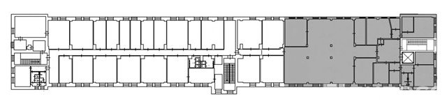
Планы помещений
Описание объекта
Кировский р-н, ул. Швецова, м. Нарвская, м. Балтийская.
Аренда отапливаемого помещения под мастерскую, склад.
Площадь: 672,2.
Возможна перепланировка помещения.
Этаж: 4-й.
Грузовой лифт: г/п 3 т (выгрузка непосредственно в помещение).
Высота потолка: 4,4 м.
Пол: ровный, бетонный.
Выделенная электрическая мощность: 20 кВт (возможно увеличение).
ХВС, канализация.
Пожарная сигнализация.
Встроенные офисно-бытовые помещения.
Высокоскоростной интернет, телефония.
Круглосуточная охрана территории. Видеонаблюдение.
Доступ – 24/7.
Подъезд для грузового и легкового транспорта.
Парковка.
К услугам арендаторов кафе-столовая.
Арендная ставка: 840 руб./м2, вкл. НДС.
Консультант: Вадим.
п100
Код объекта: 19450
Написать представителю
Андрей Салимов
Ваша информация в безопасности.
Она будет отправлена только контактному лицу данного объявления.
улица Швецова, дом , Санкт-Петербург, Россия
Цена аренды:
564 480 руб./мес
Общая площадь:672 м²














