Продажа производственного помещения, 1600 м² , Дорожная улица
Площадь: 1600 м²
                                   Цена продажи:
                                        124 800 000 руб.
                                Цена:                                 
                                    78 000 руб./м²

 Дорожная улица, дом
                        ,
                        Санкт-Петербург,
                    Россия
Дорожная улица, дом
                        ,
                        Санкт-Петербург,
                    Россия
- Контактные данные
- +7 (906) 25X-XX-XX
Продажа
- Осуществляется предпродажная подготовка документов
Об объекте
- Район
- Колпинский
- Этажность объекта
- 1
- Телекоммуникации
- телефонная линия
- Система отопления
- местная
- Выделенная энергетическая мощность
- 1200 кВТ
- Имеется парковка
- 
открытая
 
- Безопасность
- круглосуточный пункт охраны
- Система пожаротушения
- огнетушители
- Подведено водоснабжение и канализация
Производственные/складские помещения
- Подъездные пути
- автотранспорт
- Погрузо-разгрузочные возможности
- кран-балка
- Имеется парковка для грузовых автомобилей
- Имеются окна или витражи в складских/производственных помещениях
- Полы
- бетонные
- Имеется антипылевое покрытие
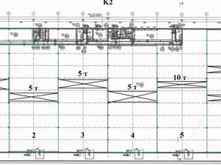
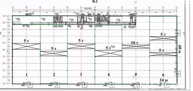
Планы помещений
Описание объекта
Всеволожский р-н, пос. Щеглово,дорожная м. Ладожская
Продажа цеха 9500-15000 кв м с кран-балками от Собственника!!!
Продаётся от собственника, производственно-складской комплекс, общей площадью 15000 кв м, возможно купить часть, шесть пролётов по 1600 кв м , в каждом есть кран-балка от 5т до 10т. Наличие всех коммуникаций (вода, канализация, отопление, электричество 1,2 МГВТ возможно увеличение). Здание и земля в собственности.
Возможно увеличение площади!!!
Цена : 78 тыс руб за 1 кв м.
Консультант Салимов Андрей
П2
Код объекта: 17817
Написать представителю

Андрей Салимов
                                        Ваша информация в безопасности. 
                                        Она будет отправлена только контактному лицу данного объявления.
Дорожная улица, дом , Санкт-Петербург, Россия
                            Цена:
                            124 800 000 руб.
78 000 руб./м²
                            Общая площадь:1 600 м² 














