Аренда производственного помещения, 4500 м² , Индустриальная улица
Площадь: 4500 м²
Цена аренды:
3 802 500 руб./мес
Цена:
845 руб./м²/мес

Индустриальная улица, дом
,
Санкт-Петербург,
Россия
- Контактные данные
- +7 (906) 25X-XX-XX
Аренда
- В стоимость аренды входит
- коммунальные платежи
Об объекте
- Высота потолков, м
- 12
- Этажность объекта
- 1
- Телекоммуникации
- телефонная линия
- Система отопления
- местная
- Выделенная энергетическая мощность
- 500 кВТ
- Имеется парковка
-
открытая
- Безопасность
- круглосуточный пункт охраны
- Система пожаротушения
- огнетушители
- Подведено водоснабжение и канализация
Производственные/складские помещения
- Парковка для грузовых авто
-
открытая
- Подъездные пути
- автотранспорт
- Погрузо-разгрузочные возможности
- кран-балка
- Имеются окна или витражи в складских/производственных помещениях
- Полы
- бетонные
- Имеется антипылевое покрытие
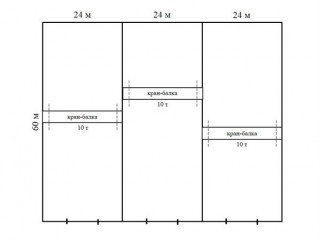
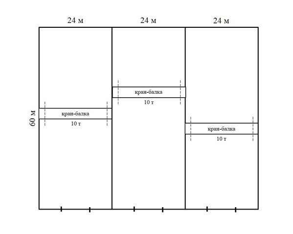
Планы помещений
Описание объекта
Гатчинский район ЛО, г. Гатчина, ул. Индустриальная, м. Московская
Аренда цеха от 1500 м² до 4500 м² с кран-балками на 10 тонн на участке 1 га
Сдается в аренду отапливаемый цех общей площадью 4500 м² на земельном участке 1 га. Помещение идеально подходит для промышленного производства или логистического комплекса. Высота потолков составляет 12 метров, что обеспечивает простор для любого оборудования. Конструкция здания включает три независимых пролета по 1500 м², каждый из которых оснащен кран-балкой грузоподъемностью 10 тонн с высотой до крюка 8 метров. Возможность арендовать как весь цех, так и отдельные пролеты, аренда одного пролета 1,4 млн. руб в месяц. В каждом пролете предусмотрены собственные ворота для грузового транспорта, обеспечивая бесперебойную логистику. Полы ровные и обеспыленные с нагрузкой 8 тонн на квадратный метр. Объект полностью обеспечен всеми коммуникациями: отопление, водоснабжение, канализация и электроэнергия мощностью 500 кВт на весь цех.
Цена 845 руб. за кв. м.+НДС 5%
Консультант Андрей Салимов
П50
Код объекта: 20673
Написать представителю
Андрей Салимов
Ваша информация в безопасности.
Она будет отправлена только контактному лицу данного объявления.
Индустриальная улица, дом , Санкт-Петербург, Россия
Цена аренды:
3 802 500 руб./мес
Общая площадь:4 500 м²






