Аренда склада, 2300 м² , Красногвардейский район
Площадь: 2300 м²
Цена аренды:
2 185 000 руб./мес
Цена:
950 руб./м²/мес

Красногвардейский район, дом
,
Санкт-Петербург,
Россия
- Контактные данные
- +7 (906) 25X-XX-XX
Аренда
- В стоимость аренды входит
- коммунальные платежи
Об объекте
- Высота потолков, м
- 11,6
- Система отопления
- местная
- Выделенная энергетическая мощность
- 150 кВТ
Производственные/складские помещения
- Парковка для грузовых авто
-
открытая
Планы помещений
Описание объекта
Санкт-Петербург, Всеволожский район ЛО, Мурино квартал м. Девяткино
Аренда отапливаемого помещения под склад/чистое производство 2300 кв м (1150 +1160 кв м)
Сдается в аренду отапливаемое помещение под склад/чистое производство, общей площадью 2300 кв м (1150+1160 кв м). Возможно арендовать отдельно каждую часть
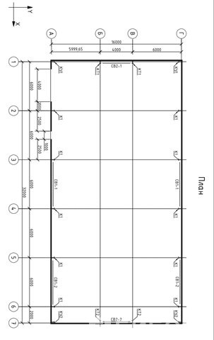
1.здание 24*48=1152 м2 - - однопролетное( без колонн), высота 11,6 м
•полы наливные высокопрочные эпоксидные (5тонн/м2)
•ворот(4*4,5м)
•инж. сети: эл- 150 кВт, вода,канализация,отопление, рекуператор,пожарный водопровод
•?ОПС,видеонаблюдение, физ охрана 24*7
•встроенный АБК
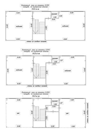
-1 этаж 144 м2: мастерская, 2 кабинета,столовая, 2 раздевалки с душевой, 2 СУ( МЖ).
-3 этаж 150м2: кабинет 44м2,кабинет40 м2, кабинет 60 м2, серверная 6м2, СУ
2.? ?здание 24*48=1164 м2 - - однопролетное( без колонн), высота 11,6 м
полы наливные высокопрочные эпоксидные (5тонн/м2)
ворот(4*4,5м)
инж. сети: эл- 150 кВт, вода,канализация,отопление, рекуператор,пожарный водопровод
?ОПС,видеонаблюдение, физ охрана 24*7
3.Предусмотрена возможность объединения здания 1 и 2 (склад/производство-2316 м2, офис-150м2)через противопожарные ворота ( роллета + противопожарная шторка 2,4*3,8 м под RichTruck)
Цена 950 руб. за кв. м. с НДС
офис - 1200 р за кв м
Консультант Андрей Салимов
П50
Код объекта: 19041
Написать представителю
Андрей Салимов
Ваша информация в безопасности.
Она будет отправлена только контактному лицу данного объявления.
Красногвардейский район, дом , Санкт-Петербург, Россия
Цена аренды:
2 185 000 руб./мес
Общая площадь:2 300 м²














