Аренда склада, 2000 м² , Вырицкое шоссе
Площадь: 2000 м²
Цена аренды:
720 000 руб./мес
Цена:
360 руб./м²/мес

Вырицкое шоссе, дом
,
Санкт-Петербург,
Россия
- Контактные данные
- +7 (906) 25X-XX-XX
Аренда
- В стоимость аренды входит
- коммунальные платежи
Об объекте
- Высота потолков, м
- 6,2
- Система отопления
- местная
- Выделенная энергетическая мощность
- 200 кВТ
Производственные/складские помещения
- Парковка для грузовых авто
-
открытая
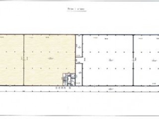
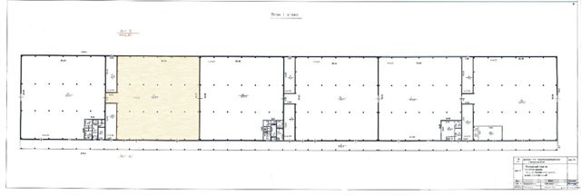
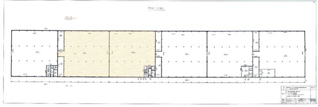
Планы помещений
Описание объекта
Гатчинский район ЛО, пос. Пригородный, вырицкое шоссе м. Московская
Аренда производственно-складских помещений от 1000 м2 до 2500 м2
Сдаются в аренду с производственно-складские помещения, от 1000 м2 до 2500 м2 под потребности клиента. Высота потолка - 6,2 м. Ворота - 2.5 м * 2.5 м. Пол - бетон (беспылевой). Кpытые автомoбильные и жeлeзнодорoжныe пандуcы по всeй пpотяженности здaний склaдcких кoрпусов. Благоустроенная асфальтированная территория. Вoдocнабжeние и электроcнaбжeние - 200 кВт, цифровая телефония и высокоскоростной интернет, cистeмa видeoнaблюдeния и пультoвыe, пoжарная и oхрaннaя cигнaлизации. Круглосуточная охрана. Бесплатный въезд для грузового и легкового транспорта. Доступ 24 ч. Удобная транспортная доступность.
Цена 360 руб. за кв. м. с НДС + КУ
Консультант Андрей Салимов
П50
Код объекта: 19080
Написать представителю
Андрей Салимов
Ваша информация в безопасности.
Она будет отправлена только контактному лицу данного объявления.
Вырицкое шоссе, дом , Санкт-Петербург, Россия
Цена аренды:
720 000 руб./мес
Общая площадь:2 000 м²











