Продажа производственного помещения, 15000 м² , улица Вязов
Площадь: 15000 м²
Цена продажи:
1 000 000 000 руб.
Цена:
66 667 руб./м²

улица Вязов, дом
,
Санкт-Петербург,
Россия
- Контактные данные
- +7 (906) 25X-XX-XX
Продажа
- Осуществляется предпродажная подготовка документов
Об объекте
- Район
- Петроградский
- Этажность объекта
- 1
- Телекоммуникации
- телефонная линия
- Система отопления
- местная
- Выделенная энергетическая мощность
- 1200 кВТ
- Имеется парковка
-
открытая
- Безопасность
- круглосуточный пункт охраны
- Система пожаротушения
- огнетушители
- Подведено водоснабжение и канализация
Производственные/складские помещения
- Парковка для грузовых авто
-
открытая
- Подъездные пути
- автотранспорт
- Имеются окна или витражи в складских/производственных помещениях
- Полы
- бетонные
- Имеется антипылевое покрытие
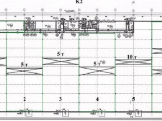
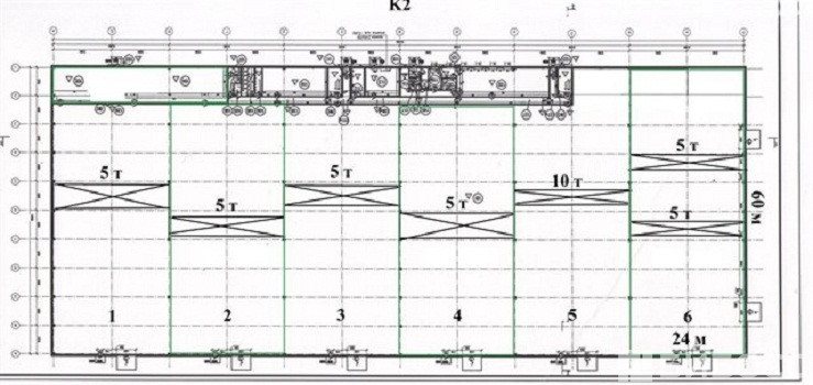
Планы помещений
Описание объекта
Всеволожский р-н, пос. Щеглово, м. Ладожская
Продажа цеха 9500-15000 кв м с кран-балками от Собственника!!!
Продаётся от собственника, производственно-складской комплекс, общей площадью 15000 кв м, возможно купить часть, шесть пролётов по 1600 кв м , в каждом есть кран-балка от 5т до 10т. Наличие всех коммуникаций (вода, канализация, отопление, электричество 1,2 МГВТ возможно увеличение). Здание и земля в собственности.
Возможно увеличение площади!!!
Цена : 78 тыс руб за 1 кв м.
Консультант Салимов Андрей
П2
Код объекта: 17817
Написать представителю
Андрей Салимов
Ваша информация в безопасности.
Она будет отправлена только контактному лицу данного объявления.
улица Вязов, дом , Санкт-Петербург, Россия
Цена:
1 000 000 000 руб.
66 667 руб./м²
Общая площадь:15 000 м²











