Аренда магазина, 44 м² , Успенский пр-кт 46
Площадь: 44 м²
Цена аренды:
99 000 руб./мес
Цена:
2 250 руб./м²/мес

Успенский пр-кт, дом
46,
Верхняя Пышма,
Свердловская область
- Контактные данные
- +7 (343) 38X-XX-XX
Описание объекта
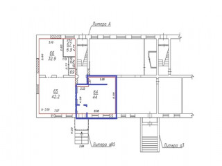
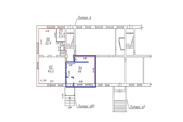
Помещение 44.0 м2. Сдам часть торгового помещения с отдельным входом на первой линии Успенского проспекта, центральной улицы города Верхняя Пышма. Локация с интенсивным автомобильным и пешеходным трафиком.
Помещение расположено на углу здания, что обеспечивает хорошую визуальную обзорность.
Площадь 44 кв.м. Планировка удобная, перегородки не капитальные, при необходимости легко демонтируются.
Отдельная входная группа. Доступ 24/7.
Высота потолков 2,6 м. Приточная вентиляция. Электрическая мощность 15 кВт. Установлен отдельный санузел. Заведена вода. Отдельные, вычитаемые приборы учета на электричество и воду. Отопление рассчитывается пропорционально площади.
Предусмотрено место под вывеску. Есть парковочные места для клиентов.
Помещение подходит под торговлю, услуги, офис, салон красоты, барбершоп, пункт выдачи заказов, кофейню формата «с собой» и другие направления.
Собственник ИП на УСН. Коммунальные платежи и электроэнергия оплачиваются дополнительно.
Без комиссии для арендатора.
Звоните, отвечу на вопросы и организую просмотр.
Написать представителю
Андрей Фионов
Ваша информация в безопасности.
Она будет отправлена только контактному лицу данного объявления.
Успенский пр-кт, дом 46, Верхняя Пышма, Свердловская область
Цена аренды:
99 000 руб./мес
Общая площадь:44 м²










